Продаж просторої 1 кімн. квартири у Винниках з ремонтом та індивідуальним опаленням (№ 213-073-503)

Ціна: 67 700 $
Характеристики
| Ціна: | 67 700 $ |
|---|---|
| № об'єкта: | 213-073-503 |
| Кімнат: | 1 розд |
| Поверх: | 4 / 10 ліфт |
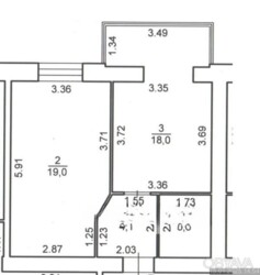
| Площа: | 44 / 20 / 18 м2 |
| Санвузол: | 1 сумісний |
| Балкон: | балкон |
Адреса: Львівська, Львів (територіальна громада), Винники, Іванова Гора
Поруч з Винниківським лісопарком та розвиненою міською інфраструктурою.
Час їзди до центру Львова автомобілем 20 хв., громадським транспортом біля 30 хв.
Поруч є зупинки міських автобусів №29, 40 та 5а.
Квартира має теплу підлогу у кухні, коридорі та санвузлі. Додатково встановлені настінні алюмінієві радіатори опалення – 2 шт. по 15 секцій кожен.
Двоконтурний газовий котел Ariston. Колектор теплої підлоги Luxor з насосом Halm.
Комбінований фільтр з редуктором тиску води Honeywell. Металеві двері з антизламними стержнями, з 2 листів металу внутр. та зовн. по 2 мм. кожен, рама та двері утеплені та шумоізольовані мінватою.
Меблі, варильна поверхня газова Bosh, кухонна витяжка Perfelli, холодильник Electrolux, пральна машина LG.
Не втрачайте можливість придбати затишне житло у чудовому районі міста!













