Продаж 2-кімнатної квартири на вул. Малоголосківська (№ 213-073-465)

Ціна: 78 000 $
Характеристики
| Ціна: | 78 000 $ |
|---|---|
| № об'єкта: | 213-073-465 |
| Кімнат: | 2 розд |
| Поверх: | 9 / 9 ліфт |
| Площа: | 62 / 40 / 15 м2 |
| Санвузол: | 1 сумісний |
| Балкон: | відсутній |
| Додатково: | новобудова |
Адреса: Львівська, Львів, Шевченківський, Малоголосківська, 44
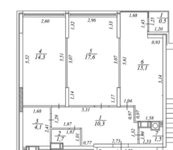
Планування - роздільне. Два санвузли, один з яких роздільний. Ремонт після будівельників. Висота стелі - 2.85 м.
Електрика, індивідуальне газове опалення з двоконтурним котлом. Центральний водопровід та каналізація.
Можливий продаж за програмою єОселя за вартістю 80000$. Тип угоди - право власності.
Квартира розташована у зданій новобудові 'Сьоме Небо' від забудовника City of Dreams. Будинок збудований з цегли та утеплений пінополістиролом. Є два засклені лоджії, підземний та гостьовий паркінг.
Поруч є вся необхідна інфраструктура: аптеки, відділення пошти, школи, дитячі садки, магазини, ТРЦ та зупинка громадського транспорту.
Квартира має панорамні вікна. Встановлена сигналізація. Є паркувальне місце та гостьовий паркінг.















