Продаж в Жк на Трускавецькій (№ 213-069-887)

Ціна: 62 800 $
Характеристики
| Ціна: | 62 800 $ |
|---|---|
| № об'єкта: | 213-069-887 |
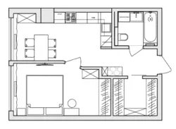
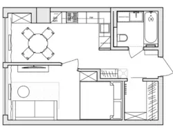
| Кімнат: | 1 розд |
| Поверх: | 7 / 14 ліфт |
| Площа: | 41 / 22 / 13.4 м2 |
| Санвузол: | 1 сумісний |
| Балкон: | відсутній |
| Додатково: | новобудова |
Адреса: Львівська, Львів, Франківський, Трускавецька
Продаю на 7му пов 1к квартиру в зданому будинку,дуже тепла квартира,сонячна,є тепла підлога у коридорі та санвузлі,стіни поштукатурені,є радіатори та залита стяжка,газовий котел.
Секція Д2









